
Проект капитального ремонта многоквартирного дома – обязательный документ для планирования и проведения комплексных ремонтных работ, направленных на восстановление и модернизацию инженерных систем, фасадов, кровли и других конструктивных элементов здания.
Для оформления проекта необходимо обратиться в специализированную проектную организацию, имеющую соответствующую лицензию и опыт работы с объектами жилого фонда. Важно учитывать, что проект должен соответствовать требованиям региональных программ капитального ремонта и нормам строительного законодательства.
В процессе подготовки проекта проводится техническое обследование здания, включая оценку состояния несущих конструкций, коммуникаций и инженерных систем. Полученные данные становятся основой для составления технического задания и сметной документации.
Для выбора подрядчика рекомендуется проверить наличие сертификатов, ознакомиться с реализованными объектами и получить рекомендации от управляющих компаний или ТСЖ. Проект капитального ремонта оформляется в соответствии с установленными стандартами и подлежит согласованию в уполномоченных органах жилищного надзора.
Требования к проекту капитального ремонта многоквартирного дома

Проект капитального ремонта должен соответствовать нормативным актам, в частности требованиям СП 31-110-2003, ЖК РФ и региональных строительных норм. Основные требования к содержанию и оформлению проекта включают:
- Техническое обоснование объёма и состава работ с указанием конкретных конструктивных элементов, подлежащих ремонту.
- Данные о состоянии инженерных систем (отопление, водоснабжение, электроснабжение, канализация) с результатами обследований и необходимыми расчетами для восстановления или модернизации.
- Сметная документация, подготовленная в соответствии с актуальными региональными ценами и расценками, с указанием стоимости работ, материалов и оборудования.
- Согласование с органами государственного строительного надзора и санитарно-эпидемиологическими службами по части безопасности и соответствия санитарным нормам.
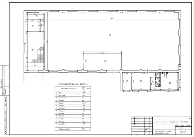
- Проектная документация должна включать планы, разрезы, схемы с указанием конкретных ремонтных технологий и материалов, соответствующих действующим техническим регламентам.
- Документальное подтверждение наличия правового основания для проведения ремонта – решение общего собрания собственников или управляющей организации.
- Учёт энергоэффективности и требований по снижению теплопотерь, если это предусмотрено региональными программами капитального ремонта.
Дополнительно рекомендуется включить в проект график выполнения работ с этапами и сроками, чтобы обеспечить прозрачность и контроль реализации ремонта.
Все материалы и чертежи должны быть подготовлены в электронном виде с возможностью передачи в муниципальные органы для регистрации и утверждения проекта.
Перечень документов для подачи заявки на разработку проекта ремонта
Для оформления заявки на разработку проекта капитального ремонта многоквартирного дома требуется собрать комплект документов, обеспечивающих полное и точное описание объекта и условий проведения работ.
Обязательными документами являются:
1. Правоустанавливающие документы на здание: свидетельство о государственной регистрации права собственности или выписка из ЕГРН, подтверждающая право управления МКД.
2. Технический паспорт здания: актуальная копия, выданная БТИ или МФЦ, с указанием характеристик конструкций, инженерных систем и планировочных решений.
3. Акты обследования технического состояния: заключения специализированных организаций, подтверждающие выявленные дефекты и объемы необходимых работ.
4. Решение общего собрания собственников помещений: протокол, в котором отражено одобрение капитального ремонта и утверждён перечень необходимых мероприятий.
5. Техническое задание на проектирование: документ, формирующий требования к объему и содержанию проекта, согласованный с управляющей организацией и собственниками.
6. Паспорт фасада и инженерных систем: если предусмотрен ремонт внешних или внутренних коммуникаций, требуются сведения о текущем состоянии и технических характеристиках.
7. Согласования с ресурсоснабжающими организациями: при необходимости подтверждения технической возможности проведения работ на сетях водоснабжения, отопления, электроснабжения.
Рекомендуется дополнительно приложить фотографии дефектов и аварийных участков, чтобы упростить анализ и ускорить подготовку проекта.
Неполный пакет документов может стать причиной отказа в приеме заявки или задержек на стадии разработки проекта капитального ремонта.
Выбор организации для подготовки проекта капитального ремонта

Выбор подрядчика для разработки проекта капитального ремонта многоквартирного дома следует основывать на наличии у организации допуска к соответствующим видам проектных работ, выданного СРО (саморегулируемой организацией). Отсутствие такого допуска делает проект недействительным для согласования и утверждения в органах государственного надзора.
Рекомендуется проверять у потенциального подрядчика следующие документы:
| Документ | Назначение |
|---|---|
| Свидетельство о членстве в СРО | Подтверждает право на выполнение проектных работ в сфере капитального ремонта |
| Лицензии и сертификаты | Подтверждают квалификацию и соблюдение стандартов качества |
| Положительные отзывы и реализованные проекты | Оценка опыта и качества выполненных работ |
Важно обратить внимание на наличие в штате организации специалистов с профильным образованием и опытом работы в сфере проектирования жилых домов, включая инженеров-строителей, архитекторов и экспертов по энергоэффективности. Это влияет на качество технических решений и соответствие нормативам.
Также следует запросить информацию о сроках выполнения проекта и гарантии соблюдения установленных регламентов. Организация должна предоставить четкий договор с указанием ответственности и порядка взаимодействия на всех этапах разработки проекта.
При выборе подрядчика стоит учесть наличие опыта работы с органами местного самоуправления и жилищными инспекциями, что ускорит процедуру согласования и утверждения проекта капитального ремонта.
Пошаговая процедура согласования проекта с органами управления домом
1. Сбор и подготовка проектной документации. Включает технический отчет, сметы, план-график работ и заключения специалистов. Все документы должны соответствовать требованиям СНиП и региональных норм.
2. Передача документов в управляющую организацию или ТСЖ. Подача осуществляется в письменном виде или через официальный электронный портал с заявлением о согласовании проекта.
3. Проверка полноты и соответствия документов. Орган управления анализирует комплектность и соответствие проекту строительным и техническим нормам. При выявлении замечаний направляет письменные требования по доработке.
4. Проведение общего собрания собственников жилья. Уведомление о дате собрания направляется минимум за 10 дней. Для легитимности требуется кворум не менее 50% плюс один голос собственников.
5. Голосование и утверждение проекта. Для одобрения требуется поддержка не менее двух третей участников собрания либо общего числа собственников в зависимости от внутреннего регламента.
6. Оформление протокола собрания. В протоколе фиксируются принятые решения, утвержденный проект и назначение ответственных за контроль исполнения.
7. Получение письменного согласия управляющей организации. Документ подтверждает утверждение проекта и готовность к передаче его в фонд капитального ремонта или подрядчикам.
8. Передача проекта и протокола в фонд капитального ремонта. Регистрация для финансирования и контроля дальнейшей реализации ремонтных работ.
9. Мониторинг изменений в проекте в процессе ремонта. Корректировки допускаются только после повторного согласования с органами управления и, при необходимости, повторного голосования собственников.
10. Итоговая приемка выполненных работ. Организуется совместно с представителями управляющей организации и собственниками, оформляется акт сдачи-приемки капитального ремонта.
Где и как получить техническое задание на разработку проекта

Техническое задание (ТЗ) на разработку проекта капитального ремонта многоквартирного дома формируется на основе анализа состояния дома и требований к ремонту. Его можно получить в местном органе жилищного надзора или в региональном фонде капитального ремонта, который курирует программу ремонта в вашем регионе.
Для получения ТЗ необходимо подать заявление в уполномоченную организацию с пакетом документов: правоустанавливающие документы на дом, протокол собрания собственников, если он имеется, и результаты технического обследования здания, если оно проводилось.
Если техническое обследование не выполнено, его проводят специализированные компании. После обследования формируется исходная информация для составления технического задания. Важно, чтобы обследование включало данные о состоянии несущих конструкций, инженерных систем и фасада.
Техническое задание разрабатывает либо региональный фонд капитального ремонта, либо выбранная заказчиком организация, имеющая соответствующую аккредитацию. ТЗ должно содержать конкретные технические параметры ремонта, перечень работ, требования к материалам и срокам исполнения.
После подготовки проектной организации ТЗ утверждается собственниками многоквартирного дома или управляющей организацией. В случае несогласия возможно проведение повторного рассмотрения с корректировкой требований.
Рекомендуется контролировать процесс формирования ТЗ, чтобы избежать некорректных или неполных технических условий, что снизит риски ошибок в проекте и дополнительных затрат при ремонте.
Особенности оформления проектной документации для дома старой постройки

Для домов старой постройки проектная документация требует учета износа конструкций и исторических особенностей здания. В первую очередь необходима детальная техническая экспертиза с привлечением квалифицированных инженеров и специалистов по строительству. Она должна включать обследование несущих конструкций, коммуникаций и фасадов с фиксацией дефектов и их степени.
При составлении проекта капитального ремонта для таких домов обязательна разработка мероприятий по укреплению фундамента и стен, если выявлен высокий износ или нестабильность. Особое внимание уделяется сохранению архитектурного облика, что регламентируется региональными нормами охраны памятников и исторических зданий, если дом попадает под их действие.
Проект должен содержать детализированные схемы замены или ремонта инженерных систем с учетом современных стандартов безопасности и энергоэффективности, но при этом сохранять совместимость с существующими конструктивными решениями. Для многоквартирных домов старой постройки важно учитывать нормативы по вентиляции и электроснабжению с учетом планировки, часто не соответствующей современным требованиям.
Документация оформляется с обязательным приложением результатов инструментальных обследований – геодезических замеров, дефектоскопии, а также заключений специализированных лабораторий по прочности материалов. При этом проектная организация должна иметь разрешение на работу с объектами культурного наследия, если дом находится под охраной.
В процессе согласования проекта с органами управления домом и муниципальными службами следует представить подтверждающие документы о техническом состоянии здания и предложенные меры ремонта. Это позволит избежать повторных экспертиз и задержек в утверждении документации.
Особенности оформления проектной документации для домов старой постройки заключаются в комплексном подходе к обследованию, строгом соблюдении нормативных требований по сохранению конструкций и архитектуры, а также тщательном согласовании с контролирующими органами.
Сроки подготовки и утверждения проекта капитального ремонта
Подготовка проекта капитального ремонта многоквартирного дома обычно занимает от 30 до 90 календарных дней в зависимости от объёма и сложности работ. В случаях с домами старой постройки или при необходимости проведения дополнительных обследований срок может увеличиться до 120 дней.
Первичный этап включает сбор исходных данных – технического обследования здания, анализа инженерных систем и учета нормативных требований. Этот этап занимает в среднем 10–20 дней. После чего приступают к разработке самой проектной документации – чертежей, спецификаций и смет, что требует 20–60 дней.
Согласование проекта с органами государственного строительного надзора и жилищными органами занимает дополнительно от 15 до 30 дней. В случае выявления замечаний проект возвращается на доработку, что может увеличить срок согласования до 45 дней.
Обязательной стадией является получение положительного заключения экспертизы проектной документации. Стандартный срок экспертизы составляет 20 рабочих дней, но может быть сокращён при ускоренной процедуре или увеличен при высокой загрузке экспертов.
Рекомендуется заранее закладывать в график проекта буфер времени не менее 15% на непредвиденные задержки, связанные с согласованиями и техническими уточнениями.
Для своевременного запуска капитального ремонта необходимо начинать подготовку проекта минимум за 4 месяца до планируемого старта работ, учитывая все этапы и потенциальные корректировки.
Ответственность и контроль за качеством выполненного проекта
Ответственность за качество проекта капитального ремонта лежит на организации, выполнившей проектную документацию. Она обязана обеспечить соответствие проекта техническому заданию, нормам строительного законодательства и требованиям безопасности.
Контроль качества выполняется на нескольких этапах:
- Внутренний контроль проектировщика: проверка полноты расчетов, правильности выбора материалов и технологий, соответствия проектных решений нормативам.
- Экспертиза проектной документации: обязательная независимая проверка уполномоченной экспертизной организацией, подтверждающая безопасность и техническую обоснованность ремонта.
- Согласование с органами управления домом: проверка соответствия интересам собственников и требованиям местных нормативов.
В случае выявления несоответствий или ошибок подрядчик обязан устранить замечания в срок, установленный договором.
Для усиления контроля рекомендуется:
- Назначить ответственное лицо или комиссию со стороны собственников для регулярного контроля хода проектных работ.
- Проводить промежуточные проверки и сверки проектных материалов с техническим заданием.
- Хранить всю документацию с актами согласования и экспертными заключениями для возможных проверок и гарантийных обязательств.
Нарушение требований к проекту или отсутствие качественной экспертизы может привести к срыву сроков ремонта, дополнительным расходам и угрозе безопасности жителей дома.
Вопрос-ответ:
Какие документы необходимы для оформления проекта капитального ремонта многоквартирного дома?
Для подготовки проекта капитального ремонта требуется собрать техническую документацию на дом, включая поэтажные планы, технический паспорт здания, акты обследования состояния конструкций, а также согласия собственников помещений. Кроме того, нужно получить техническое задание от управляющей организации или ТСЖ, которое определяет объемы и виды работ. В некоторых случаях необходимы согласования с органами местного самоуправления и пожарной инспекцией.
Где лучше всего искать организацию для разработки проекта капитального ремонта?
Рекомендуется обращаться в специализированные проектные организации с опытом работы именно в сфере капитального ремонта многоквартирных домов. Хорошо, если у компании есть лицензия на выполнение таких работ и положительные отзывы от других клиентов. Можно изучить предложения на региональных порталах, узнать рекомендации у соседних домов или в управляющей компании. Важно проверить наличие квалифицированных инженеров и архитекторов, а также портфолио реализованных проектов.
Сколько времени занимает подготовка и согласование проекта капитального ремонта?
Сроки подготовки проекта зависят от сложности объекта и объема работ, но обычно составляют от одного до трех месяцев. На разработку документации уходит около 4-8 недель, после чего требуется согласование с собственниками и органами контроля, что может занять еще 2-4 недели. В некоторых случаях сроки увеличиваются из-за необходимости дополнительных обследований или корректировок проекта.
Какие этапы включает процедура согласования проекта капитального ремонта с органами управления домом?
Сначала проект предоставляется для ознакомления собственникам жилья — это может быть собрание или голосование. Далее необходимо получить протокол, подтверждающий одобрение. После этого проект направляется в управляющую организацию или ТСЖ для проверки и вынесения заключения. В некоторых случаях требуется согласование с муниципальными службами. После получения всех согласований проект считается утверждённым и может быть передан подрядчикам для реализации.
