
Техническая документация на системы противопожарной защиты (ППЗ) представляет собой комплект регламентированных материалов, обеспечивающих проектирование, установку, ввод в эксплуатацию, техническое обслуживание и проверку работоспособности ППЗ. Ее состав строго определяется нормативными актами, в частности, требованиями СП 5.13130 и ГОСТ Р 21.1101. В документации отражаются как технические параметры оборудования, так и условия эксплуатации, взаимодействия с другими системами здания и порядок сервисного обслуживания.
Обязательными элементами являются пояснительная записка, чертежи системы с указанием трассировки кабелей и расположения оборудования, расчетные данные (в том числе гидравлические или акустические, в зависимости от вида системы), а также схемы подключения и алгоритмы работы. Каждое из этих положений должно быть детализировано с привязкой к фактической планировке объекта, классам пожарной опасности помещений и нормам эвакуации.
Особое внимание уделяется разделу согласования документации с заинтересованными структурами: надзорными органами, проектировщиками смежных инженерных систем, заказчиком. Без этой стадии эксплуатация объекта невозможна. Также в составе документации указываются методики испытаний и графики технического обслуживания, которые оформляются в отдельные приложения.
Проектная документация дополняется сертификатами соответствия, паспортами оборудования и инструкциями по монтажу, которые предоставляются производителями. Наличие этих документов не просто желательно – оно подтверждает соответствие системы ППЗ требованиям технических регламентов и позволяет избежать административных и эксплуатационных рисков.
Формирование полной и корректной технической документации требует участия квалифицированных специалистов в области пожарной безопасности, проектирования и нормативного контроля. Недочеты на этапе подготовки этих материалов могут привести к отказу в приемке объекта или к системным ошибкам в функционировании ППЗ.
Если нужно, могу составить подробный перечень документов по каждому типу ППЗ.
Перечень обязательных разделов проектной документации на ППЗ

Схемы систем ППЗ включают графические материалы: планы размещения оборудования, трассировку кабелей, принципиальные схемы автоматических установок (пожарная сигнализация, системы оповещения и управления эвакуацией, пожаротушения). Все схемы должны быть выполнены в масштабе с четкими обозначениями и номерами позиций.
Спецификации оборудования и материалов включают перечень применяемых изделий с указанием типа, марки, количества и технических характеристик. Обязательны ссылки на стандарты и соответствие требованиям пожарной безопасности.
Маркировочные планы демонстрируют размещение элементов системы с нанесением маркировки, необходимой для проведения монтажных и эксплуатационных работ. Эти планы должны обеспечивать возможность однозначной идентификации всех компонентов.
Схемы интеграции с другими инженерными системами отображают сопряжение ППЗ с вентиляцией, электроснабжением, системами управления зданием. Важно зафиксировать точки подключения и взаимодействие в аварийных режимах.
Расчеты включают гидравлический и аэродинамический расчет (при наличии водяного, газового или порошкового пожаротушения), расчет звукового давления для систем оповещения, а также расчет времени эвакуации. Все результаты сопровождаются исходными данными и принятыми допущениями.
Мероприятия по эксплуатации и обслуживанию содержат регламент технического обслуживания систем ППЗ, описание периодичности проверок, перечень контролируемых параметров и допустимых отклонений.
Согласования и разрешительные документы включают копии заключений от органов надзора, технических условий от смежных организаций, акты обследования и иные необходимые разрешения, подтверждающие соответствие проекта требованиям нормативной базы.
Каждый из перечисленных разделов обязателен для проектной документации в составе рабочей документации на системы противопожарной защиты и подлежит экспертизе в установленном порядке.
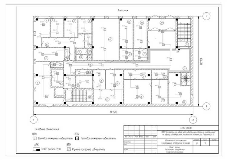
Требования к схемам размещения оборудования системы ППЗ
Схемы размещения оборудования системы противопожарной защиты (ППЗ) должны обеспечивать однозначное понимание пространственного расположения всех компонентов системы в пределах защищаемого объекта. Каждая схема разрабатывается на основе актуальных архитектурных чертежей и учитывает специфику конструктивных и функциональных особенностей здания.
На схеме обязательно отображаются:
- маршруты прокладки кабелей и трубопроводов с указанием диаметров и типов коммуникаций;
- точное расположение извещателей, оповещателей, модулей пожаротушения, шкафов управления и распределительных коробок;
- зоны действия каждого элемента системы, с границами, привязанными к планировке помещений;
- условные обозначения, соответствующие ГОСТ 21.101 и СП 5.13130.2009;
- данные об этажности объекта с отдельной схемой на каждый уровень.
Каждая схема должна сопровождаться координатной привязкой оборудования в системе координат объекта. Применение произвольных обозначений и допущений недопустимо. Дополнительно указывается высота установки оборудования над уровнем пола, особенно для потолочных и настенных устройств.
При наличии нескольких типов систем (например, пожарной сигнализации, оповещения, автоматического пожаротушения) схемы формируются раздельно, с соблюдением цветовой дифференциации линий и компонентов, чтобы исключить наложение информации.
Согласование схем выполняется с представителями проектной и эксплуатационной организации. Изменения, вносимые по ходу монтажных работ, обязательно фиксируются в актуализированной версии схем, входящей в состав исполнительной документации.
Формат схем – А3 или крупнее, с масштабом, обеспечивающим читаемость всех элементов и обозначений. Недопустимо уменьшение масштаба, препятствующее точной интерпретации данных при печати.
Электронные версии схем должны быть выполнены в формате, поддерживающем редактирование (DWG, DXF, PDF с векторной структурой), и предоставляться вместе с проектной документацией на цифровом носителе.
Формат и содержание исполнительной документации на ППЗ
Исполнительная документация на системы противопожарной защиты (ППЗ) оформляется после завершения монтажных и пусконаладочных работ. Она подтверждает соответствие выполненных работ проектной документации и требованиям нормативных документов.
Документация оформляется в бумажном и электронном виде. Бумажный вариант должен быть прошит, пронумерован и скреплён подписью ответственного исполнителя и печатью организации. Электронная копия предоставляется в формате PDF, с точным воспроизведением всех страниц, включая подписи и штампы.
Состав исполнительной документации включает следующие обязательные элементы:
- Титульный лист с указанием названия объекта, адреса, наименования системы, исполнителя работ и даты завершения монтажа.
- Акты скрытых работ с подписями представителей подрядчика, заказчика и авторского надзора.
- Акты индивидуальных и комплексных испытаний системы ППЗ, с указанием параметров, режимов и результатов.
- Акт приемки системы ППЗ в постоянную эксплуатацию с приложением заключения о готовности.
- Исполнительные схемы размещения оборудования и трасс прокладки кабельных линий с актуальными привязками и отметками изменений по факту выполнения работ.
- Протоколы настройки и параметрирования компонентов системы: адресных устройств, шлейфов сигнализации, блоков управления.
- Пояснительная записка с указанием отклонений от проекта (при наличии), их обоснованием и согласованиями.
Все листы схем и актов должны быть подписаны ответственным лицом за выполнение работ и заверены печатью монтажной организации. В случае внесения изменений по ходу работ исполнительные схемы дополняются соответствующими штампами «Изм.» с кратким описанием сути изменения и датой внесения.
Для обеспечения дальнейшей эксплуатации и техобслуживания системы заказчику дополнительно передаётся комплект актуализированной рабочей документации с отметкой «Исполнительная». Этот комплект должен быть идентичен оригиналу проекта за вычетом изменённых и откорректированных листов.
Оформление кабельных журналов и спецификаций изделий

Кабельный журнал отражает фактическую трассировку, сечения, типы кабелей и подключения. Для его корректного оформления необходимо соблюдать следующие требования:
- Каждая строка фиксирует один кабель с уникальным идентификатором.
- Указываются начальная и конечная точки (устройства, клеммы, шкафы), включая обозначения по проекту.
- Прописывается фактическая длина кабеля с учётом монтажного запаса.
- Приводится тип кабеля с полным наименованием, включая марку, количество жил и сечение.
- Дополнительно фиксируются способы прокладки: в лотке, трубе, скрыто или открыто.
Журнал оформляется по маршрутам прокладки. При наличии резервных кабелей их также включают с пометкой «резерв» и указанием направления. Все отклонения от проектных данных комментируются с указанием причин (например, изменения трассы из-за препятствий).
Спецификация изделий содержит перечень фактически установленных компонентов системы ППЗ. Этот документ используется для проверки комплектации и упрощения процедур приёмки. Оформление осуществляется в виде детализированного перечня с разбивкой по разделам:
- Идентификатор изделия (код, номер позиции по проекту).
- Наименование устройства с указанием модели и производителя.
- Технические характеристики: ток потребления, номинальное напряжение, степень защиты.
- Количество установленных единиц по факту.
- Место установки или привязка к чертежу.
Изделия, исключённые при монтаже, указываются в отдельной группе с отметкой «не установлен». Для всех заменённых компонентов необходимо привести соответствующее обоснование и паспортные данные аналогов. Спецификация оформляется по формам, согласованным с заказчиком и органами надзора.
Для актуальности документации в конце каждого документа указывается дата, подпись ответственного лица и согласование с техническим надзором. Электронная версия сохраняется в машиночитаемом формате с возможностью поиска по ключевым параметрам.
Документы, подтверждающие соответствие системы ППЗ нормативам
Для подтверждения соответствия системы противопожарной защиты требованиям действующих нормативных актов необходимо включать в состав технической документации комплект обязательных документов. Отсутствие любого из них делает проект юридически уязвимым и затрудняет ввод объекта в эксплуатацию.
Основным документом является декларация о соответствии, оформленная на основании технического регламента о требованиях пожарной безопасности (Федеральный закон №123-ФЗ). Декларация оформляется производителем, подрядчиком или уполномоченной организацией на основании протоколов испытаний, выданных аккредитованной лабораторией.
Протоколы пожарных испытаний оборудования и систем (например, спринклеров, дымоудаления, оповещения) включаются в документацию в оригинале или нотариально заверенной копии. Каждый протокол должен содержать конкретные значения параметров, подтверждающих соответствие ГОСТ или своду правил (СП), указанному в проекте.
Сертификаты соответствия на применяемое оборудование (огнетушители, датчики, кабель, шкафы управления) предоставляются по каждой позиции. Важно указывать сроки действия сертификатов, реквизиты органа сертификации и ссылку на нормативный документ, на соответствие которому была проведена оценка.
Акты приемо-сдаточных испытаний с подписями представителей подрядчика, заказчика и эксплуатационной организации оформляются после пуско-наладочных работ. Они должны содержать конкретные данные о проверенных режимах, испытаниях на срабатывание и отклонениях, если таковые выявлены и устранены.
Акт ввода системы ППЗ в эксплуатацию – обязательный итоговый документ, который подтверждает, что система протестирована и функционирует в соответствии с проектной и нормативной документацией. Акт оформляется в соответствии с Постановлением Правительства РФ №87 с учетом требований Ростехнадзора и МЧС.
Если объект подлежит государственной экспертизе, необходимо приложить положительное заключение экспертизы проектной документации, в котором отдельно указывается соответствие проектных решений по ППЗ требованиям нормативов (СП, СНиП, ГОСТ).
В случае применения нестандартных решений – например, адресных систем пожарной сигнализации с иностранными компонентами – предоставляются заключения о технической приемке или технические условия (ТУ), прошедшие согласование в уполномоченных органах.
Инструкция по эксплуатации и техническому обслуживанию ППЗ
Инструкция по эксплуатации и техническому обслуживанию системы противопожарной защиты (ППЗ) должна содержать четкие регламенты запуска, контроля и отключения оборудования, а также порядок взаимодействия с элементами системы. В документе указываются параметры нормальной работы каждого узла, допустимые отклонения и признаки неисправностей.
Эксплуатационные процедуры включают алгоритмы проверки состояния датчиков, контроль работы сигнализации и систем оповещения, тестирование автоматических устройств пожаротушения. Необходимо регулярно фиксировать результаты проверок в журналах с указанием даты, времени и выявленных отклонений.
Техническое обслуживание предусматривает плановые инспекции с периодичностью, установленной нормативами и проектной документацией. Включаются очистка, калибровка датчиков, проверка электропитания и резервных источников, обновление программного обеспечения, если предусмотрено.
Особое внимание уделяется регламентам замены изношенных компонентов и деталей, а также действиям при аварийных ситуациях, включая отключение отдельных элементов без нарушения работы всей системы. В инструкции указывается перечень допускаемых средств и инструментов для обслуживания, требования к квалификации персонала и безопасности работ.
Документ содержит рекомендации по хранению и транспортировке сменных элементов, а также описание методик проведения внеплановых проверок после инцидентов. Отдельно прописаны требования к ведению технической документации и отчетности, чтобы обеспечить полноту и актуальность данных для анализа состояния ППЗ.
Акты скрытых работ и протоколы испытаний компонентов ППЗ
Акты скрытых работ оформляются после выполнения монтажных этапов, которые после закрытия доступа невозможно визуально проверить. В документации обязательно фиксируется дата, место проведения, состав комиссии и подробное описание выполненных работ с указанием применённых материалов и оборудования.
В актах должно быть указано соответствие выполненных работ проектным требованиям и техническим нормам. Особое внимание уделяется монтажу кабельных трасс, установке пожарных извещателей, прокладке трубопроводов систем пожаротушения, а также герметизации технологических отверстий.
Каждый акт содержит ссылку на исполнительную документацию и чертежи, подтверждающие корректность монтажа. Рекомендуется использовать фотографии скрытых этапов с датировкой для повышения достоверности.
Протоколы испытаний компонентов ППЗ включают результаты проверки оборудования на соответствие техническим характеристикам и стандартам безопасности. Обязательна проверка работоспособности пожарных извещателей, датчиков, устройств управления и систем оповещения.
Испытания проводят согласно регламентам ГОСТ и технической документации производителя. В протоколах указываются методы тестирования, параметры измерений, выявленные дефекты и принятые меры по их устранению.
Для систем пожаротушения протоколы содержат данные о давлении, времени срабатывания, герметичности трубопроводов и эффективности распыления огнетушащего вещества.
Документирование результатов испытаний обеспечивает контроль качества и служит основанием для допуска системы ППЗ к эксплуатации. Все протоколы подписываются ответственными специалистами и утверждаются руководством проекта.
Документирование изменений в системе ППЗ после ввода в эксплуатацию

Каждое изменение должно сопровождаться актуализацией схем и чертежей системы ППЗ с указанием внесенных корректировок. Необходимо обновлять технические паспорта оборудования, протоколы испытаний и приемо-сдаточные акты, отражая новые параметры или конфигурации.
При модернизации или замене компонентов обязательным является проведение повторных испытаний с составлением протоколов, которые должны быть приложены к актуализированной документации. Все изменения требуют согласования с надзорными органами, при необходимости – оформления разрешительной документации.
Рекомендуется использовать систему нумерации версий документации с указанием даты внесения изменений для облегчения контроля и отслеживания историй правок. Хранение актуализированной документации должно обеспечивать быстрый доступ и сохранность в течение всего срока эксплуатации объекта.
Вопрос-ответ:
Какие основные разделы входят в состав технической документации на ППЗ системы?
Техническая документация на систему противопожарной защиты включает несколько ключевых разделов. В первую очередь это проектная документация — чертежи, схемы и спецификации оборудования. Далее идут инструкции по монтажу и настройке, которые описывают порядок установки и проверки элементов системы. Также важны акты скрытых работ и протоколы испытаний, подтверждающие качество монтажа и функциональность. Наконец, включаются документы по эксплуатации и техническому обслуживанию, а также отчетные и исполнительные документы, фиксирующие все изменения и проверки.
Какие требования предъявляются к оформлению исполнительной документации ППЗ?
Исполнительная документация должна содержать полный набор документов, подтверждающих соответствие выполненных работ проекту и нормативам. В нее входят схемы и чертежи с актуальными изменениями, акты приемки скрытых работ, протоколы испытаний оборудования, паспорта и сертификаты изделий. Все документы оформляются согласно установленным стандартам с указанием дат, подписей ответственных лиц и печатей. Важно обеспечить их структурированность и доступность для дальнейшего использования при эксплуатации и ремонте системы.
Какие документы подтверждают соответствие ППЗ нормативным требованиям?
Подтверждение нормативного соответствия включает сертификаты на оборудование, протоколы испытаний и поверок, акты приемки монтажных работ, а также заключения экспертиз и результаты проверок государственных органов. В документах отражаются соответствия конкретных изделий требованиям ГОСТ, ТУ и другим отраслевым стандартам, а также правильность установки и функционирования системы в соответствии с правилами пожарной безопасности.
Как документируются изменения в системе ППЗ после ввода в эксплуатацию?
Все изменения, внесённые после запуска системы, фиксируются в специальных журналах и отчетах. В них указываются дата и причина изменений, описание выполненных работ, а также результаты проверок после модернизации или ремонта. Документирование позволяет отслеживать текущее состояние системы, подтверждать её исправность и гарантировать безопасность эксплуатации. Дополнительно может оформляться технический отчёт с обновленными схемами и рекомендациями по обслуживанию.
В чем заключается роль актов скрытых работ при оформлении документации ППЗ?
Акты скрытых работ фиксируют этапы монтажа элементов системы, которые после выполнения становятся недоступны для визуального контроля, например, прокладка кабелей внутри стен или установка оборудования в технических нишах. Эти акты подтверждают, что работы выполнены по проекту и нормам, что позволяет избежать претензий при последующих проверках. Они служат основанием для продолжения следующих этапов и входят в состав исполнительной документации.
Какие основные разделы входят в состав технической документации на ППЗ системы?
Техническая документация на ППЗ включает несколько ключевых разделов. В первую очередь это проектные решения, которые описывают архитектуру и состав системы. Далее идут схемы электрические и монтажные, содержащие подробную информацию о соединениях и расположении оборудования. Важной частью являются паспорта и сертификаты на используемые компоненты, а также инструкции по монтажу, эксплуатации и техническому обслуживанию. Кроме того, документация может включать протоколы испытаний, акты скрытых работ и перечень изменений, внесённых после ввода системы в эксплуатацию.
Как правильно организовать процесс документирования изменений в системе ППЗ после её ввода в эксплуатацию?
Для поддержания актуальности и надёжности системы после ввода в эксплуатацию необходимо фиксировать все изменения, связанные с её компонентами и настройками. Каждый такой случай оформляется отдельным документом — обычно это журнал изменений или технический отчёт, в котором подробно указываются причины, описание проведённых работ, даты и ответственные лица. Важно, чтобы документация содержала ссылки на соответствующие проекты и схемы, а также включала результаты проверок после внесённых корректировок. Такой подход обеспечивает прозрачность и облегчает последующее обслуживание и модернизацию ППЗ.
