
Технический план на дом представляет собой официальный документ, необходимый для постановки объекта недвижимости на кадастровый учёт. Его внешний вид строго регламентирован и включает несколько обязательных элементов: чертеж с точными размерами, графическое изображение расположения здания на земельном участке, а также текстовую часть с техническими характеристиками.
Чертеж отображает контуры дома, его площадь, высоту и расположение несущих конструкций. Важным элементом является масштаб, обычно применяемый 1:200 или 1:500, что обеспечивает детализацию и читаемость. На плане должны быть обозначены все входы, выходы, а также примыкающие инженерные коммуникации.
Структура технического плана включает разделы с кадастровыми данными, сведениями о материалах стен и перекрытий, информацию об этажности и назначении помещений. Каждая страница документа должна содержать подписи уполномоченных специалистов и отметки о прохождении экспертизы, что подтверждает юридическую силу плана.
Формат и размеры листов технического плана

Технический план на дом оформляется на бумаге формата А3 с точными габаритами 297×420 мм. Этот формат обеспечивает достаточную площадь для размещения всех необходимых элементов – планов, схем, пояснительных надписей и штампов.
При необходимости допускается использование формата А4 (210×297 мм) для дополнительных листов, если информация требует разделения на части. Однако основной комплект документации должен содержаться на листах А3 для удобства чтения и масштабирования.
Все листы должны быть ориентированы книжной (вертикальной) ориентацией. Поля по периметру листа устанавливаются согласно нормативам: левое поле – 20 мм, правое – 10 мм, верхнее – 10 мм, нижнее – 15 мм. Эти отступы обеспечивают правильное оформление и возможность скрепления.
Размеры шрифтов и условных обозначений на листах технического плана стандартизированы: основной текст печатается шрифтом не менее 3 мм по высоте, заголовки – 5 мм. Масштаб плана выбирается исходя из площади дома, но не превышает 1:500, чтобы сохранить читаемость и точность изображения.
Для цифровой версии технического плана размеры и формат листов сохраняются в PDF, без сжатия и искажений, что гарантирует соответствие бумажному варианту при печати.
Обязательные графические элементы на плане дома
Технический план дома должен содержать следующие графические элементы, обеспечивающие точное восприятие и последующее использование документа:
- Контур здания: четко прорисованная линия контура с указанием наружных габаритов и масштаба. Контур отражает реальное положение дома на участке.
- Внутренние перегородки: линии, показывающие расположение несущих и ненесущих стен, с указанием толщины и материалов.
- Окна и двери: обозначаются стандартными условными знаками с указанием размеров проемов и направлений открывания.
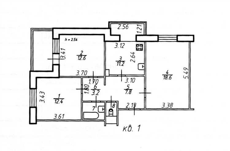
- Основные помещения: каждая комната на плане подписывается с указанием её назначения и площади в квадратных метрах.
- Высотные отметки: наносятся для определения уровней пола, потолка и отметок перекрытий, особенно при наличии нескольких этажей или цокольного этажа.
- Обозначения инженерных коммуникаций: линии и символы, указывающие на расположение систем отопления, водоснабжения, электроснабжения и вентиляции, если требуется по техническому заданию.
- Масштаб и условные обозначения: на плане обязательно указываются масштаб чертежа и легенда с расшифровкой всех примененных символов и линий.
- Ориентировка по сторонам света: стрелка или знак с указанием направления «Север», необходимая для корректного расположения здания относительно участка и солнца.
Все элементы должны быть выполнены с точностью, обеспечивающей однозначное понимание конструкции дома и возможность использования плана для строительства или согласования.
Описание и расположение условных обозначений
Условные обозначения на техническом плане дома представляют собой стандартизированные графические символы, передающие информацию о конструктивных элементах, инженерных сетях и объектах на участке. Их точное расположение напрямую влияет на читаемость и правильность интерпретации документа.
Обязательные элементы условных обозначений: контуры зданий и сооружений, линии коммуникаций (водопровод, канализация, электрические сети), условные знаки входных групп, элементов благоустройства. Каждый символ должен соответствовать ГОСТам и нормативным документам, используемым в проектировании.
Расположение знаков выполняется так, чтобы избежать наложений и скоплений, обеспечивая визуальную ясность. Символы располагаются на соответствующих объектах или вблизи них, с выносными подписями, если элемент мал по размеру или закрыт другими деталями плана.
Расстояние между обозначениями и объектами должно быть минимально достаточным для однозначного восприятия, при этом допускается использование пунктирных линий для связи подписи с объектом.
При наличии большого количества условных знаков рекомендуется формировать легенду с расшифровкой и ссылками на соответствующие места плана. Легенда размещается на свободном поле, обычно в углу листа, с единым шрифтом и размером, обеспечивающим удобочитаемость.
Для инженерных коммуникаций применяются стандартные условные обозначения с цветовой кодировкой и типами линий (сплошные, штриховые, пунктирные), отражающими назначение и состояние сети. При этом в техническом плане цвет используется ограниченно, чаще – графические отличия.
Важным требованием является согласованность обозначений с архитектурно-строительной частью, чтобы избежать разночтений при передаче данных между проектировщиками и строителями.
Технические характеристики объекта в плане

Технический план дома содержит точные данные о геометрии и конструктивных элементах здания. В нем указываются габаритные размеры по длине, ширине и высоте, включая отметки уровней полов и потолков. Размеры фиксируются с точностью до сантиметра, что необходимо для согласования с кадастровыми и строительными нормами.
План должен содержать информацию о конструктивных материалах: тип стен (кирпич, бетон, дерево), толщину и способ утепления. Отдельно указываются параметры перекрытий и кровли, включая типы и толщины слоев, что важно для расчета нагрузок и энергоэффективности.
Указывается расположение и размеры оконных и дверных проемов, их тип и материалы конструкций. Это влияет на светопроникновение, вентиляцию и общую планировку помещения.
В техническом плане отражаются основные инженерные коммуникации – места прохода труб водоснабжения, канализации, вентиляционных каналов и электрических кабелей. Для точного монтажа необходима детализация диаметра, материала и направления прокладки.
Обязательно фиксируются отметки рельефа участка и уровень грунтовых вод при необходимости, что влияет на выбор фундамента и гидроизоляции. Эти параметры определяют долговечность и устойчивость строения.
Все параметры должны соответствовать требованиям нормативных документов, таких как СП и ГОСТы, а также техническим регламентам. Точное и корректное описание технических характеристик в плане уменьшает риски ошибок при строительстве и эксплуатации здания.
Схема расположения дома на земельном участке

Схема отражает точное положение здания относительно границ участка и других объектов. В техническом плане она обеспечивает контроль соответствия строительства утверждённым нормативам и правилам землепользования.
Основные элементы схемы:
- Контур дома с указанием габаритных размеров и ориентации по сторонам света.
- Границы земельного участка с точным масштабом и координатами углов.
- Расстояния от дома до ближайших границ участка, подъездных путей и инженерных коммуникаций.
- Местоположение вспомогательных построек и зеленых насаждений при наличии.
Рекомендации по выполнению схемы:
- Использовать координаты, полученные с помощью геодезических приборов, для обеспечения точности.
- Отражать все изменения конфигурации участка и застройки, включая перепады рельефа.
- Обозначать все линейные отступы по нормативам СНиП, например минимальное расстояние от дома до границы – не менее 3 метров.
- Чётко указывать масштаб чертежа, обычно 1:500 или 1:200, для удобства проверки и согласования.
- Включать данные о направлении северного меридиана для правильной ориентации на местности.
Схема служит основанием для контроля за соблюдением правил строительства и дальнейшего использования земельного участка. Точность и полнота её выполнения критичны для успешного согласования технического плана.
Порядок указания этажности и высотных отметок
Этажность в техническом плане указывается числом полных этажей, включая цокольные и мансардные, если они предусмотрены проектом. Подземные уровни обозначаются отдельной записью с указанием глубины от отметки нулевого уровня. Для жилых зданий этажность определяется по количеству этажей с жилыми помещениями, для производственных и административных – учитываются все функциональные уровни.
Высотные отметки задаются в метрах относительно нулевой отметки, принятой за уровень чистого пола первого этажа или проектный уровень земли. Обязательны отметки уровня чистого пола каждого этажа, перекрытий и крыши. Отметка крыши указывается по коньку или верхнему краю парапета.
Для каждого этажа указывают отметку пола и потолка, включая чердачные и технические помещения. Высота этажа определяется разницей между отметками пола и потолка. Если высота изменяется внутри этажа (например, антресоль), дополнительно фиксируют промежуточные уровни.
Высотные отметки фиксируются с точностью до 0,01 м. При наличии изменений проектных решений после изначальной фиксации этажности и отметок вносятся актуализированные данные с указанием даты и основания корректировки.
Обязательна привязка отметок к единой системе координат объекта. В случае сложного рельефа дополнительно указывают отметки по периметру фундамента и ключевые точки рельефа, влияющие на высотные характеристики здания.
Требования к подписи и печати на техническом плане

Подпись на техническом плане должна содержать фамилию и инициалы исполнителя, дату составления, а также должность и наименование организации. Используется чернила чёрного или синего цвета, исключается использование карандаша или нестойких материалов.
Подписи должны быть выполнены разборчиво, без сокращений, чтобы обеспечить однозначную идентификацию ответственного лица. Каждая подпись сопровождается расшифровкой, расположенной рядом или в специальном поле плана.
Печать на техническом плане должна быть чёткой, без пропусков и размытий. Используется фирменная круглой или овальной формы печать с реквизитами организации, соответствующая установленным стандартам.
Печать накладывается на подпись исполнителя или рядом с ней, так чтобы часть подписи была видна, что исключает возможность подделки. Размер печати должен соответствовать масштабу документа – не менее 30 мм в диаметре для круглых печатей.
На техническом плане недопустимо использование нескольких печатей одного и того же типа без обоснования. Все подписи и печати должны быть расположены в специально отведённой области, чаще всего в титульном блоке, для удобства проверки и чтения.
Оттиск печати должен быть выполнен равномерно, без смазывания и искажений линий, что гарантирует сохранение юридической силы документа.
При цифровом оформлении технического плана допускается использование электронной подписи и печати, соответствующих требованиям законодательства и обеспечивающих неизменность документа.
Типичные ошибки при оформлении технического плана дома
Также часто встречается неправильное определение площади застройки. Площадь рассчитывается по наружному контуру капитальных стен, включая все выступающие элементы. Ошибки возникают при включении веранд, террас или крылец без фундамента, которые не учитываются как часть застройки.
Некорректное обозначение назначения здания – ещё один частый недочёт. Например, если дом используется как индивидуальное жильё, но в документах указан статус садового дома, возможны проблемы при регистрации права собственности. Назначение должно соответствовать фактическому использованию и быть подтверждено проектной документацией.
Нарушения в указании высоты здания и количества этажей также приводят к возврату плана. Этажность указывается с учётом подземных уровней, если они превышают отметку в 1,5 метра от уровня земли. Мансарду при этом следует считать этажом только при наличии капитальных перекрытий.
Ещё одна ошибка – использование устаревших форматов XML-схем или несоответствие требованиям к электронной подписи. Документ должен соответствовать актуальной версии, утверждённой Росреестром. Перед подачей следует проверить совместимость файла с системой подачи технической документации.
