
Установка лифта в жилом здании зависит от ряда нормативных и технических требований, а также от высоты и этажности дома. Согласно действующим строительным нормам, лифт обычно монтируется в домах с четырьмя этажами и выше, однако конкретное решение принимает застройщик или управляющая компания с учётом планировки и потребностей жильцов.
Минимальный этаж для установки лифта в многоквартирном доме часто начинается с первого жилого этажа, чтобы обеспечить удобство доступа для всех категорий населения, включая пожилых и людей с ограниченными возможностями. При этом важна конфигурация здания: если первые этажи занимают коммерческие помещения или технические зоны, лифт может начинаться с более высокого этажа.
Проектирование лифтового оборудования учитывает также нагрузку и габариты шахты, которые влияют на стоимость и сроки монтажа. В многоэтажных домах с 5-9 этажами лифт является обязательным элементом для комфортного проживания, а в домах ниже этажа установки – необязателен. Планировка и доступность лифта напрямую влияют на комфорт и безопасность жильцов, что требует тщательного анализа перед началом строительства или реконструкции.
Нормативные требования к минимальному этажу установки лифта

Основные требования следующие:
- Лифт должен устанавливаться в жилых домах высотой от трех этажей. В домах с двумя этажами лифт не обязателен по нормативам.
- Минимальная отметка этажа для монтажа лифта – первый этаж. Лифтовая шахта обязана начинаться с уровня, доступного для всех жильцов, обычно это цокольный или первый этаж.
- В домах, где первый этаж – технический или нежилой, лифт может начинаться с жилого этажа, но не выше второго этажа, если это не нарушает доступность для маломобильных групп населения.
- Обязательна установка лифта в домах высотой свыше 9 этажей вне зависимости от этажности первого жилого этажа.
При реконструкции зданий нормы допускают установку лифта с минимального этажа, на котором возможно технически реализовать шахту, но не выше второго этажа, при условии обеспечения доступа для инвалидов и пожилых.
Рекомендации к проектированию включают:
- Обеспечение входа в лифт с первого жилого этажа, если первый этаж нежилой.
- Учет расположения подъездов для равномерного распределения пассажиропотока.
- Согласование проекта с местными органами архитектуры и строительного контроля.
Несоблюдение нормативов может привести к отказу в приеме объекта в эксплуатацию и штрафным санкциям.
Технические особенности монтажа лифта на первом этаже

Монтаж лифта на первом этаже многоквартирного дома требует учёта нескольких ключевых технических аспектов, связанных с конструктивными и инженерными особенностями здания.
- Габариты шахты и площадки. Первый этаж зачастую имеет увеличенную высоту потолков и может включать технические помещения, что позволяет предусмотреть оптимальные размеры шахты для установки лифта без необходимости значительных изменений конструкции здания.
- Фундамент и виброизоляция. Нагрузка от лифтового оборудования передаётся на фундамент через шахту и направляющие. На первом этаже необходимо усилить основание и обеспечить виброизоляцию для минимизации передачи шумов и вибраций на жилые помещения.
- Доступ к инженерным коммуникациям. Монтаж на первом этаже облегчает подведение электроснабжения и систем управления лифтом, поскольку чаще всего здесь располагаются технические щиты и электрощитовые помещения.
- Безопасность и эвакуационные пути. На первом этаже необходимо предусмотреть свободные зоны для посадки и высадки пассажиров, а также обеспечить беспрепятственный доступ к выходам в случае чрезвычайных ситуаций.
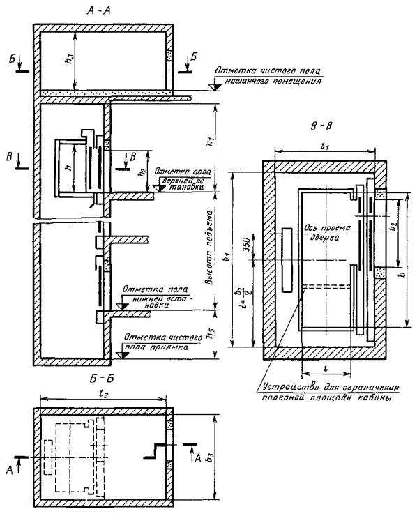
- Высота подъемного пространства. Для корректной работы лифта требуется соблюдение нормативных минимальных высот шахты и приямка. На первом этаже, при наличии подвала, может потребоваться углубление приямка для установки оборудования ходового устройства и компенсации ходов кабины.
При проектировании и монтаже лифта на первом этаже необходимо строго следовать требованиям ГОСТ Р 53780-2010 и СП 54.13330.2016, обеспечивающим безопасность и надежность эксплуатации.
Влияние архитектурных особенностей здания на выбор этажа лифта

Архитектурная планировка многоквартирного дома напрямую влияет на решение, с какого этажа устанавливать лифт. В домах с подземными или техническими этажами лифт часто начинается с первого жилого этажа, минуя цоколь или подвальные уровни. Это связано с необходимостью обеспечить доступность и соответствие нормативам для жильцов.
В зданиях с высокими потолками на первом этаже или встроенными коммерческими помещениями лифт может быть запроектирован таким образом, чтобы первый пассажирский уровень находился выше технического или торгового этажа. Это снижает риски повреждения лифта из-за высокой нагрузки и оптимизирует поток пассажиров.
В домах с нестандартной этажностью, например, с антресолью или полуподвалом, устанавливают промежуточные площадки лифта, однако посадочная зона обычно соответствует основному жилому этажу. При этом выбор начального этажа лифта учитывает высоту подъема кабины и минимальные требования к высоте шахты.
Для зданий с увеличенным шагом между этажами и нестандартными конструктивными элементами (балконы, эркеры, колоны) важно учитывать точное размещение шахты лифта, чтобы избежать технических коллизий и обеспечить безопасный доступ на первый обслуживаемый этаж. В таких случаях лифт часто стартует с этажа, где обеспечивается свободное пространство для оборудования и удобная посадка.
Рассмотрение особенностей входных групп, подъездов и расположения лестничных клеток также влияет на выбор начального этажа лифта. Если первый этаж используется преимущественно для хозяйственных нужд или технических помещений, лифт обычно начинается с второго этажа, где сосредоточена основная жилой поток.
Особенности установки лифта в домах с подвалом или цокольным этажом
В зданиях с подвалом или цокольным этажом выбор стартового этажа лифта зависит от функционального назначения этих помещений и архитектурных условий. Часто лифт начинают устанавливать с уровня цоколя, если там располагаются технические помещения, склады или паркинг, обеспечивая удобный доступ для жильцов и обслуживающего персонала.
При этом необходимо учитывать высоту цокольного этажа, которая обычно ниже стандартного жилого этажа, что влияет на конструкцию шахты и подбор оборудования. В ряде случаев требуется установка промежуточных площадок или дополнительных дверей для безопасного перехода между уровнями.
Особое внимание уделяется гидроизоляции и защите шахты от влаги, поскольку подвал находится ниже уровня земли. Применяются усиленные материалы и системы дренажа для предотвращения попадания воды и сохранения долговечности лифтового оборудования.
В зданиях с подвалом лифт может начинаться именно с этого уровня, если предусмотрен подъём автомобилей или доставка крупногабаритных грузов. В таком случае используются лифты повышенной грузоподъемности с увеличенным кабинным пространством и усиленной платформой.
При проектировании необходимо учитывать нормативы по противопожарной безопасности, обеспечивая доступ к эвакуационным выходам и установку систем оповещения, особенно если цоколь или подвал используются для технических или коммунальных нужд.
Рекомендуется координировать установку лифта с инженерными сетями, расположенными в подвале, чтобы избежать конфликтов и обеспечить удобство обслуживания. Проект должен предусматривать возможный монтаж лифта с минимальными изменениями в несущих конструкциях здания.
Правила согласования этажа установки лифта с управляющей компанией и жильцами

Управляющая компания проверяет соответствие выбранного этажа требованиям пожарной безопасности, нормам СНиП и ГОСТ, а также учитывает возможное влияние на инженерные коммуникации. Если проект не нарушает нормативы, управляющая компания организует собрание собственников для обсуждения вопроса.
Собственники голосуют по предложенному этажу установки лифта. Согласно Жилищному кодексу РФ, для принятия решения требуется большинство голосов (не менее 50% + 1 голос) от общего числа собственников, либо иной установленный договором порядок. Протокол собрания с результатами голосования фиксируется официально.
В случае отрицательного решения жильцов проект корректируется, возможен выбор другого этажа или дополнительное техническое обоснование для устранения возражений. При положительном решении согласование продолжается с оформлением технической документации и подачей заявок в соответствующие инстанции.
Рекомендуется заранее подготовить разъяснительные материалы и технические расчёты для жильцов, чтобы снизить количество вопросов и ускорить процесс согласования. Несоблюдение процедуры согласования может привести к юридическим спорам и остановке строительных работ.
Требования к безопасности и доступности при выборе этажа для лифта

При выборе этажа для установки лифта в многоквартирном доме необходимо строго учитывать нормативные требования по безопасности, включая обеспечение беспрепятственного эвакуационного выхода. Лифт не должен ограничивать доступ к аварийным выходам и должен располагаться так, чтобы минимизировать время эвакуации жильцов с верхних этажей.
Доступность лифта определяется в первую очередь с точки зрения маломобильных групп населения. Стандартом является установка кабины с шириной дверного проема не менее 800 мм, что позволяет использовать лифт с инвалидными колясками. Минимальный уровень доступности обеспечивается, если лифт начинается с первого или цокольного этажа, где расположен основной вход в дом.
Важным условием безопасности является обеспечение постоянного электроснабжения лифта от аварийного источника питания для сохранения функциональности в случае отключения электричества. Также необходимо предусмотреть достаточное освещение зоны посадки и высадки, чтобы избежать травм и затруднений для пользователей.
Высота подъема и количество остановок лифта должны быть согласованы с требованиями пожарной безопасности: лифт не должен использоваться в качестве эвакуационного средства, однако доступ к этажам должен быть оптимальным для оперативного прибытия пожарных служб. При этом следует исключить установку лифта на этажах с ограниченным доступом или технических помещениях.
При проектировании важно учитывать нормативы по вентиляции шахты и кабины лифта, чтобы предотвратить накопление опасных газов или перегрев оборудования. В зоне лифта должны отсутствовать препятствия, обеспечивая свободный доступ к дверям и кнопкам вызова.
Практические рекомендации по проектированию лифта с учётом этажа начала установки

При проектировании лифта необходимо чётко определить этаж, с которого начинается установка, так как это напрямую влияет на конструктивные решения, безопасность и эксплуатационные характеристики.
Если лифт начинается с первого этажа, важно предусмотреть доступность для маломобильных групп населения и обеспечить удобные подходы к кабине. При этом необходимо соблюдать нормативы по высоте подъёма и размерам шахты.
Для лифтов, стартующих с цокольного или подвального этажей, учитывается увеличение глубины шахты и дополнительные инженерные коммуникации. В таких случаях требуется усиление гидроизоляции и обеспечение вентиляции шахты.
В таблице представлены основные параметры проектирования в зависимости от этажа начала установки:
| Этаж начала установки | Особенности проектирования | Рекомендации по монтажу |
|---|---|---|
| Первый этаж | Стандартные размеры шахты, минимальная глубина приямка | Контроль выравнивания пола, проверка уровней входа |
| Цокольный этаж | Увеличенная глубина шахты, усиление гидроизоляции | Обеспечить дренаж и вентиляцию, использовать влагостойкие материалы |
| Подвальный этаж | Максимальная глубина приямка, повышенные требования к безопасности | Дополнительное освещение шахты, установка аварийных систем |
При выборе этажа начала установки обязательно учитывать расположение инженерных коммуникаций, чтобы избежать конфликтов при монтаже и дальнейшей эксплуатации.
Кроме того, проектировщик должен предусмотреть соответствие лифта требованиям по скорости и грузоподъёмности, учитывая пассажиропоток с нижних этажей. Для этого рекомендуется проводить моделирование загрузки на этапе проектирования.
Техническая документация должна содержать подробные схемы расположения шахты и оборудования с учётом выбранного этажа начала установки, что снизит риски ошибок при строительстве и монтаже.
Вопрос-ответ:
С какого этажа обычно устанавливают лифт в многоквартирных домах и почему?
В большинстве случаев лифт начинают устанавливать с первого этажа, поскольку он служит основным входом в здание и обеспечивает доступ для всех жильцов, включая людей с ограниченной мобильностью. Однако в домах с цокольным этажом или подвалом иногда монтаж начинается с нулевого или цокольного уровня, если там предусмотрен вход или технические помещения. Выбор этажа зависит от архитектурных особенностей здания, требований нормативов и удобства пользователей.
Можно ли устанавливать лифт, начиная со второго этажа, если первый этаж используется под коммерческие помещения?
Да, установка лифта, начиная со второго этажа, возможна в тех случаях, когда первый этаж предназначен для магазинов, офисов или других коммерческих целей, и нет необходимости в подъеме с уровня улицы через лифт. При этом должны быть обеспечены альтернативные входы и доступность для жильцов и посетителей. В таких случаях проектировщики учитывают особенности здания и согласовывают схему с управляющей компанией и контролирующими органами.
Как архитектура здания влияет на выбор этажа для установки лифта?
Архитектурные особенности, такие как наличие цокольного этажа, размещение входов, расположение лестничных клеток, а также планировка подъездов, влияют на определение начального этажа лифта. В домах с несколькими уровнями входа иногда устанавливают лифт с цокольного или первого этажа, в зависимости от того, какой уровень считается основным для жильцов. Кроме того, высота этажей и наличие технических помещений также учитываются для обеспечения правильного монтажа и безопасной эксплуатации.
Какие нормативы регламентируют минимальный этаж для установки лифта в многоквартирном доме?
Нормативные документы устанавливают минимальные требования к этажности и доступности лифта. Обычно лифт должен начинаться с уровня, который обеспечивает удобный доступ для всех категорий жильцов, включая маломобильных граждан. Для жилых домов с высотой от пяти этажей установка лифта является обязательной и обычно начинается с первого этажа. При проектировании учитываются СНиПы и ГОСТы, которые регламентируют высоту этажей, размеры кабины, дверных проемов и условия безопасности. В каждом регионе могут действовать дополнительные правила, которые следует учитывать при согласовании проекта.
