
Акт М-7 – это унифицированная форма первичного учета, применяемая для оформления внутреннего перемещения материальных ценностей между структурными подразделениями одной организации. Документ утвержден постановлением Госкомстата России №71а от 30.10.1997 и обязателен к применению в бухгалтерском учете при передаче ТМЦ без смены собственника.
Форма М-7 необходима в случаях, когда материальные ресурсы (сырьё, оборудование, инструменты, спецодежда) передаются, к примеру, со склада в производственный цех, из одного отдела в другой или в ремонтное подразделение. Без надлежаще оформленного акта такие операции не могут быть признаны обоснованными в учете, а ответственные лица не смогут подтвердить факт передачи ресурсов.
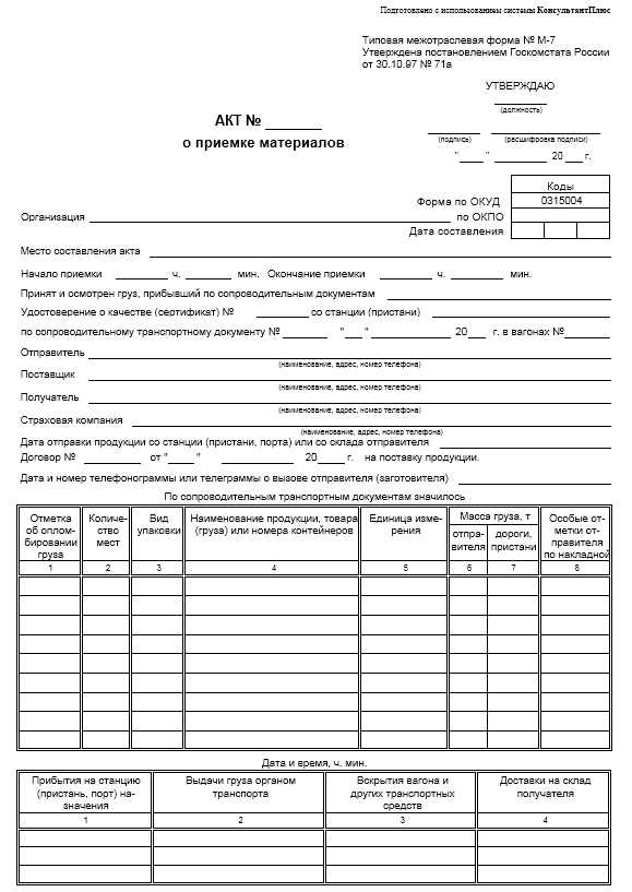
В документе указываются точные наименования и коды передаваемых материальных ценностей, их количество, единицы измерения, а также сведения о подразделениях-отправителе и получателе. Обязательна подпись материально ответственных лиц с обеих сторон, что подтверждает ответственность за сохранность переданного имущества.
Правильное оформление акта М-7 минимизирует риски спорных ситуаций при проверках, помогает отследить движение ресурсов внутри компании и обеспечивает прозрачность внутренней логистики. При этом автоматизированные системы учета (например, 1С) позволяют генерировать акт в нужной форме с минимальными усилиями, что значительно упрощает документооборот.
Акт М-7: что это такое и зачем он нужен

Документ составляется в момент отпуска материалов со склада или их перемещения между структурными подразделениями. Акт М-7 оформляется в одном экземпляре работником склада и подписывается материально ответственным лицом. Он служит основанием для списания ТМЦ с учета склада и отражения их в производственных затратах.
В акте указываются точные наименования материалов, их количество, единицы измерения, номера складов отправителя и получателя, а также реквизиты сторон. Наличие подписей ответственных лиц подтверждает факт передачи и получения ТМЦ.
Основная функция акта – обеспечить документальное подтверждение движения материальных ценностей. Это необходимо для внутреннего контроля, отчетности перед бухгалтерией и последующей сверки остатков.
Хранение оригиналов акта М-7 регламентируется сроками бухгалтерского и налогового учета. При проверках он подтверждает обоснованность расходов и корректность списания материалов.
Когда составляется акт М-7: типовые ситуации из практики

Акт М-7 оформляется в случаях, когда возникает необходимость передать материалы или сырьё внутри предприятия с отклонением от стандартных процедур. Это не универсальный документ, а строго регламентированная форма, применяемая в конкретных ситуациях.
Передача между подразделениями – наиболее распространённый повод для составления акта. Например, цех мехобработки передаёт заготовки в сварочный участок. Если передача не сопровождается накладной или предусмотрена разовая отправка, оформляется М-7 с указанием количества, номенклатуры и основания перемещения.
Изъятие материалов со склада без предварительной заявки. Бывают случаи, когда срочно требуется материал, но приходный ордер ещё не оформлен. Тогда кладовщик оформляет акт М-7, указывая ответственное лицо, получателя и причину внеплановой выдачи.
Возврат из производства – также основание для составления акта. Если остатки материалов не были израсходованы и возвращаются на склад, то оформляется М-7, чтобы зафиксировать остаток и обеспечить контроль учёта.
Списание при выявлении брака. При обнаружении дефектов в процессе производственного контроля или при приёмке, акт М-7 фиксирует передачу бракованного материала в отдел утилизации или на переработку, с указанием причин списания и ответственных лиц.
Комплектация на другие объекты. В строительной или машиностроительной практике при комплектации объектов отдельными узлами, которые изготавливаются в другом подразделении, акт М-7 оформляется для передачи материалов между производственными участками без перемещения на склад.
Во всех случаях акт М-7 подписывается материально ответственными лицами и используется для документального подтверждения движения ТМЦ в системе бухгалтерского учёта предприятия.
Кто заполняет акт М-7 и кто подписывает документ

Акт М-7 заполняет материально ответственное лицо, на балансе которого находились списываемые товарно-материальные ценности. В большинстве случаев это кладовщик, заведующий складом или иное лицо, закреплённое приказом руководителя предприятия. Заполнение осуществляется непосредственно после выявления факта порчи, недостачи, утери или списания ценностей по другим причинам.
Для составления акта требуется точное указание наименования и количества списываемых ТМЦ, их инвентарных номеров (если имеются), причины списания и ссылки на подтверждающие документы – например, акты технической экспертизы или служебные записки.
Документ подписывается членами комиссии, назначенной приказом руководителя. В состав комиссии, как правило, входят представитель бухгалтерии, инженер по оборудованию (если списываются основные средства), а также сотрудник отдела снабжения или производства. Минимум – три подписи. Также акт визирует главный бухгалтер и утверждает руководитель организации. Без их подписей документ юридически недействителен.
Какие документы сопровождают акт М-7 и зачем они нужны
Акт по форме М-7 оформляется при передаче материальных ценностей внутри организации. Его нельзя рассматривать изолированно – он действует в комплексе с рядом других документов, каждый из которых выполняет конкретную функцию в цепочке внутреннего учета.
Основным сопровождающим документом является накладная (форма М-15 или М-11), подтверждающая сам факт передачи материалов. Она указывает наименование, количество и стоимость передаваемых ТМЦ, а также информацию об отправителе и получателе внутри предприятия. Без накладной акт М-7 не может считаться действительным, так как лишён подтверждающей товарно-материальной части.
Вторым обязательным документом является заявка или внутренний ордер на отпуск материалов. Этот документ служит основанием для оформления акта и подтверждает целесообразность перемещения ТМЦ. В заявке указывается подразделение-инициатор, код счета затрат и цель использования ресурсов. Это необходимо для правильного распределения затрат в бухгалтерском и управленческом учете.
Если речь идет о передаче материалов для конкретного производственного задания, дополнительно прилагается наряд или производственное задание. Оно указывает, в каком технологическом процессе будет использоваться передаваемое сырье или комплектующие. Это важно для обоснования списания материалов по нормам.
В случае передачи оборудования – акт технического состояния (при наличии), чтобы подтвердить его пригодность к дальнейшей эксплуатации. Без него невозможно контролировать остаточный ресурс оборудования и его амортизацию.
Каждый из сопровождающих документов хранится совместно с актом М-7 в составе учетной документации, и при проверке аудиторами или контролирующими органами служит доказательством корректности операций. Хранение разрозненных документов без акта М-7 нарушает принцип непрерывности учета и может привести к ошибкам в расчетах и отчетности.
Как правильно заполнить каждую строку формы М-7

Наименование организации – указывается полное юридическое название предприятия, строго в соответствии с уставными документами. Аббревиатуры допустимы только при наличии их в официальном наименовании.
Структурное подразделение – вписывается конкретный цех, участок или отдел, где происходит движение ТМЦ. Пропуск или обобщение недопустимы.
Номер документа – присваивается по внутренней системе учета. Не допускается дублирование номеров в пределах одного отчетного периода.
Дата составления – фиксируется фактическая дата оформления акта. Ретроспективное указание запрещено, кроме случаев, оформленных по приказу руководства.
ФИО и должности комиссии – полностью записываются фамилии, имена, отчества членов комиссии, их должности в организации. Сокращения и инициалы не допускаются.
Наименование, номенклатурный номер, артикул – вносится точное наименование ТМЦ согласно учетной политике предприятия, обязательно с внутренним кодом или артикулом.
Единица измерения – указывается в соответствии с классификатором ОКЕИ. Например, «шт», «кг», «м» и пр. Несогласованное обозначение приведёт к несоответствию в отчетности.
Количество – фиксируется фактически выявленное количество передаваемых, списываемых или недостающих материалов. При несовпадении с учетными данными оформляется акт расхождений отдельно.
Причина составления акта – кратко, но точно формулируется основание (например: «списание брака», «перемещение в другой цех», «обнаружена недостача при инвентаризации»).
Подписи – каждый член комиссии лично подписывает документ. Подписи должны быть разборчивыми и соответствовать фамилиям в шапке. Факсимиле не допускаются.
Утверждение руководителем – обязательно проставляется подпись руководителя или уполномоченного лица, с указанием должности и расшифровкой подписи.
Чем грозит отсутствие акта М-7 при инвентаризации

- Невозможность подтвердить фактическое наличие и состояние имущества. Без акта М-7 невозможно официально зафиксировать результаты проверки, что усложняет выявление недостач, излишков и повреждений.
- Ошибки в бухгалтерском учете и налоговой отчетности. Отсутствие документа ведет к неправильному отражению данных об основных средствах, что может стать причиной доначислений налогов и штрафов со стороны контролирующих органов.
- Повышение риска аудиторских замечаний. При проверках аудиторы обязательно требуют акты инвентаризации, включая М-7. Их отсутствие снижает уровень доверия к отчетности и может привести к отрицательному заключению аудитора.
- Усложнение процедуры списания и перемещения основных средств. Без подтвержденного акта М-7 затруднено оформление документов на списание или передачу имущества, что влияет на управление активами компании.
- Юридические последствия. Отсутствие надлежащего документа подтверждения фактов инвентаризации может стать основанием для споров с контрагентами или внутреннего контроля, вплоть до дисциплинарных взысканий.
Рекомендации для исключения рисков:
- Обеспечить регулярное оформление акта М-7 по окончании каждой инвентаризации основных средств.
- Проверять соответствие актов фактическим данным и подписывать их ответственными лицами.
- Хранить акты в архиве не менее установленного законодательством срока, обеспечивая возможность оперативного доступа при проверках.
- Обучать сотрудников правилам ведения и оформления инвентаризационной документации.
Сроки хранения акта М-7 и правила архивирования

Акт М-7, фиксирующий списание материалов, подлежит хранению не менее 5 лет с даты его составления. Этот срок установлен нормативными документами по бухгалтерскому учету и контролю материальных ценностей. По истечении 5 лет документы могут быть переданы в архив организации для длительного хранения, если отсутствуют требования контролирующих органов о более длительном сроке.
Хранение актов М-7 должно осуществляться в защищенных от влаги, пыли и прямого солнечного света местах с соблюдением порядка систематизации по дате и номеру. Каждая партия документов подлежит регистрации в журнале учета, что обеспечивает быстрый поиск и контроль полноты сохранности.
При электронном хранении актов М-7 необходимо обеспечить их защиту от несанкционированного доступа, сохранение целостности и своевременное резервное копирование. Электронные версии должны иметь юридическую силу, подтвержденную электронной подписью, если это предусмотрено внутренними регламентами.
При передаче актов в архив целесообразно оформить акт приема-передачи с указанием количества и периодов хранения документов. Несоблюдение сроков и условий хранения может привести к нарушениям налогового и бухгалтерского законодательства с последующими штрафными санкциями.
Как оспорить данные, указанные в акте М-7

Для оспаривания данных, отражённых в акте М-7, необходимо строго следовать установленной процедуре и учитывать законодательные нормы. Ниже приведён пошаговый алгоритм действий:
- Изучите оригинал акта М-7. Проверяйте корректность заполнения всех полей, наличие подписей и печатей. Обратите внимание на дату составления и наличие замечаний.
- Соберите доказательства, противоречащие данным акта. Это могут быть технические отчёты, фото- и видеоматериалы, результаты экспертиз, показания свидетелей.
- Подготовьте письменное заявление об оспаривании. В документе укажите конкретные пункты акта, которые считаете ошибочными, и приложите собранные доказательства.
- Направьте заявление в организацию, составившую акт. Сделайте это в срок не позднее 10 рабочих дней с момента получения акта. Рекомендуется использовать почту с уведомлением или личную под роспись.
- Если внутреннее рассмотрение не принесло результата, подайте жалобу в вышестоящий орган. В жалобе опишите суть спора и приложите копии всех документов.
- В случае отказа или отсутствия реакции обратитесь в суд. Для этого подготовьте исковое заявление, приложите акт М-7, доказательства и копии всех предыдущих обращений.
- При судебном разбирательстве рекомендуется привлечь специалиста – юриста или эксперта по вопросам, отражённым в акте, чтобы повысить шансы на успешное оспаривание.
Важно сохранять все документы, связанные с актом М-7, включая копии заявлений и ответов. Несоблюдение сроков и отсутствие доказательной базы существенно снижает вероятность успешного оспаривания.
Вопрос-ответ:
Что представляет собой акт М-7 и в каких случаях он применяется?
Акт М-7 — это официальный документ, который фиксирует результаты осмотра и описывает техническое состояние транспортного средства после дорожно-транспортного происшествия или другого инцидента. Его составляют сотрудники ГИБДД для подтверждения обстоятельств аварии и оценки повреждений автомобиля.
Какая информация указывается в акте М-7 и кто несет ответственность за ее точность?
В акте отражаются данные о транспортных средствах, участвовавших в происшествии, описание повреждений, условия и место аварии, а также сведения о водителях и свидетелях. Ответственность за правильность и полноту внесенной информации лежит на инспекторах, которые проводят осмотр и составляют документ.
Можно ли использовать акт М-7 в качестве доказательства при оформлении страхового случая?
Да, акт М-7 часто служит одним из ключевых документов для страховых компаний. Он подтверждает факт ДТП и характер повреждений, что помогает в процессе оценки ущерба и принятия решения по выплатам. Однако в некоторых ситуациях может потребоваться дополнительная экспертиза.
Как долго действует акт М-7 и в каких случаях его может понадобиться повторно оформлять?
Акт М-7 сохраняет свою юридическую силу в течение всего периода разбирательств, связанных с ДТП. Если же возникают спорные вопросы или появляются новые обстоятельства, документ может потребовать пересмотра или дополнения путем повторного осмотра транспортного средства.
Можно ли отказаться от составления акта М-7 и какие последствия могут быть у такого решения?
Отказ от оформления акта М-7 нежелателен, так как он фиксирует объективные данные по происшествию. Без него будет сложнее доказать свою правоту в случае споров с другими участниками ДТП или страховой компанией. Кроме того, отказ может вызвать дополнительные вопросы у правоохранительных органов.
