
Выписка из Единого государственного реестра недвижимости (ЕГРН) содержит ключевую информацию об объекте: правообладателе, кадастровом номере, площади, назначении и наличии обременений. Но в ряде случаев пользователи получают поддельные документы, что может повлечь юридические и финансовые риски при покупке или аренде недвижимости.
Чтобы исключить использование фальшивых данных, необходимо проверять подлинность выписки из ЕГРН через официальные сервисы. Самый надежный способ – воспользоваться сайтом Росреестра или порталом «Госуслуги», где можно сверить реквизиты документа с данными из базы. Также важно обращать внимание на наличие QR-кода и уникального регистрационного номера в выписке.
Документ, оформленный в бумажном виде, проверяется по подписи и печати. Электронная версия – через квалифицированную электронную подпись, которая должна быть валидна и выдана удостоверяющим центром, зарегистрированным в Минцифры. Для этого используется бесплатный сервис проверки ЭЦП на сайте Росреестра или с помощью специализированных программ, таких как «КриптоПро CSP».
При обнаружении несоответствий – например, отсутствие данных в реестре при наличии выписки или ошибки в сведениях – следует немедленно отказаться от заключения сделки и обратиться за новой выпиской через официальный источник. Это позволяет минимизировать риски, связанные с мошенническими схемами в сфере недвижимости.
Как определить, подлинная ли электронная выписка из ЕГРН

Подлинность электронной выписки из ЕГРН можно проверить по нескольким признакам. Во-первых, документ должен иметь расширение .pdf и содержать встроенную электронную подпись. Файл без подписи или в другом формате (например, .docx или .jpg) не считается официальным документом Росреестра.
Во-вторых, на последней странице выписки должна присутствовать информация о квалифицированной электронной подписи. Это включает имя и должность подписанта, дату подписания, реквизиты сертификата ключа и данные удостоверяющего центра. Отсутствие этих сведений свидетельствует о неподлинности файла.
Для технической проверки подписи необходимо открыть файл в программе, поддерживающей проверку ЭЦП, например, в бесплатной утилите «КриптоПро PDF» или в веб-сервисе на сайте Госуслуг. При успешной верификации будет указано, что «Подпись действительна» или аналогичная формулировка.
Дополнительно можно сравнить номер выписки и дату ее формирования с данными в реестре, если ранее вы делали официальный запрос. Несовпадение этих параметров также указывает на возможную подделку.
Если возникают сомнения в подлинности, стоит запросить выписку повторно через официальный сайт Росреестра или портал Госуслуг. Только такие источники гарантируют достоверность и юридическую силу документа.
Где и как проверить электронную подпись на выписке

Проверить электронную подпись на выписке из ЕГРН можно через официальные сервисы, поддерживающие формат подписи, используемый Росреестром. Один из таких – бесплатный сервис на сайте Федеральной кадастровой палаты: https://verify.kadastr.ru. Он предназначен для проверки подлинности PDF-документов с квалифицированной электронной подписью.
Для проверки нужно загрузить файл выписки в формате PDF, полученный с портала Росреестра или через Госуслуги. Подпись встроена в документ и проверяется автоматически. Если подпись действительна, система отобразит данные о подписанте, используемом сертификате и статусе проверки. Если подпись отсутствует или не распознана, сервис отобразит сообщение об ошибке.
Альтернативный способ – использовать программное обеспечение КриптоПро CSP. После установки утилиты можно открыть файл выписки и вручную проверить действительность электронной подписи, сертификат Удостоверяющего центра, срок действия и наличие отзыва.
При использовании сторонних онлайн-сервисов важно убедиться, что они не требуют ввода персональных данных и не сохраняют загружаемые документы. Надёжность проверки зависит от использования сертифицированных инструментов и актуальных корневых сертификатов УЦ ФКП Росреестра.
Проверка QR-кода на выписке из ЕГРН через сайт Росреестра

QR-код на выписке из ЕГРН позволяет быстро проверить её подлинность. Он содержит ссылку на электронную версию документа на серверах Росреестра. Для проверки потребуется интернет-соединение и камера на телефоне или планшете.
Чтобы проверить QR-код через сайт Росреестра:
- Откройте официальный сайт Росреестра: rosreestr.gov.ru.
- Перейдите в раздел «Сервисы» и выберите пункт «Проверка документов по QR-коду» или воспользуйтесь поиском по сайту.
- Откроется форма, предлагающая отсканировать QR-код с помощью мобильного устройства или загрузить PDF-файл с выпиской, содержащей код.
- После сканирования или загрузки будет отображена информация о документе: номер, дата формирования, сведения об объекте недвижимости и статус подписи.
Если QR-код некорректен или документ подделан, система выдаст сообщение об ошибке или отсутствии данных. Это один из самых надёжных способов убедиться в подлинности выписки.
При возникновении технических сбоев рекомендуется повторить попытку позднее или использовать альтернативный способ – проверку электронной подписи файла через программу «КриптоПро CSP» или сервис на gosuslugi.ru.
Что делать, если выписка не открывается или файл повреждён

Если файл выписки не открывается, убедитесь, что его расширение соответствует формату .xml или .sig. Документы в формате .sig требуют проверки с использованием специального ПО, например, «КриптоПро CSP», «КриптоАРМ» или онлайн-сервиса «Проверка ЭП» от Минцифры.
Файлы с расширением .xml можно открыть через браузер Google Chrome или Mozilla Firefox. Если в браузере отображается нечитаемый код, откройте файл в Microsoft Excel или через специализированный XML-редактор, например, Notepad++ с установленным плагином XML Tools.
Если файл был получен в архиве (.zip) и не извлекается, причиной может быть повреждение при загрузке. Повторите скачивание, предварительно очистив кэш браузера. Не используйте сторонние загрузчики – загружайте файл только через личный кабинет на сайте Росреестра.
Если повторное скачивание не помогло, а файл по-прежнему не открывается, проверьте его целостность с помощью электронной подписи. Для этого загрузите файл и подпись на сайт проверки ЭП: verify.gosuslugi.ru. Если проверка не проходит, документ повреждён.
При подтверждённом повреждении обращайтесь в службу поддержки Росреестра через форму на сайте или по телефону горячей линии. Укажите номер заявки, дату получения и приложите проблемный файл. Это позволит быстрее получить исправленный документ.
Если требуется срочно получить доступ к данным, оформите повторный запрос на выписку. Через личный кабинет на сайте Росреестра это займет несколько минут. Повторная выдача возможна без дополнительной оплаты, если ошибка произошла по вине сервиса.
Как распознать поддельную выписку из ЕГРН по содержанию

Подлинная выписка из ЕГРН содержит точные сведения о правообладателях, объекте недвижимости и правах на него. В поддельных документах часто встречаются ошибки в юридических терминах, несоответствия в датах и реквизитах.
Обратите внимание на наличие уникального номера документа и даты его формирования. В официальных выписках эти данные строго соответствуют стандартам Росреестра. Подделки могут содержать несуществующие или устаревшие номера.
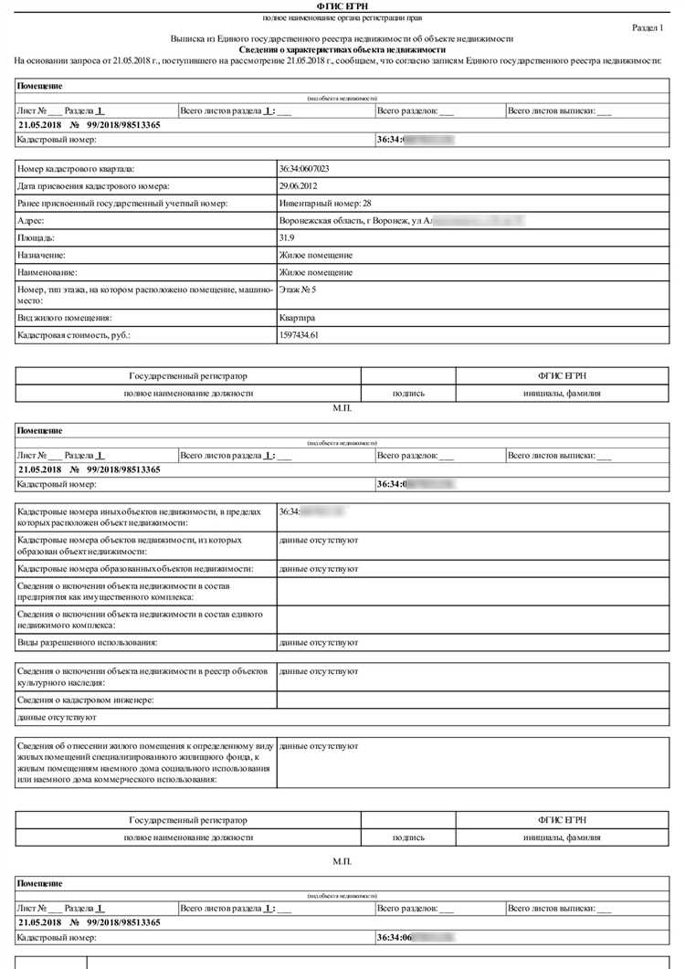
Проверьте раздел с характеристиками объекта: адрес, площадь, кадастровый номер. Несовпадение с реальными данными или нечеткая формулировка указывает на подделку.
Обратите внимание на электронную подпись и QR-код. В выписках подлинного образца они присутствуют и корректно отображаются при проверке через официальный сайт Росреестра.
Ошибки в шрифтах, орфографические неточности и нестандартное форматирование текста также свидетельствуют о ненадёжности документа.
Для точной проверки сравните выписку с образцами, доступными на сайте Росреестра, и используйте официальные сервисы для подтверждения подлинности.
Какие данные в выписке из ЕГРН подлежат сверке при проверке
Далее сверяется адрес объекта. Он должен содержать полное и корректное описание расположения – город, улицу, номер дома, этаж и, при необходимости, номер квартиры или помещения.
Обращайте внимание на правообладателей. В выписке указываются ФИО собственников, доли владения, а также форма собственности. Несоответствие данных может свидетельствовать о подделке или неправильном оформлении.
Следующий важный раздел – характеристики объекта недвижимости. Это площадь (общая и жилая), кадастровая стоимость, назначение объекта (жилое, нежилое, земельный участок) и дата постановки на учет. Несоответствие параметров может означать ошибку или мошенничество.
Необходимо проверить ограничения и обременения, если они присутствуют. В выписке указываются аресты, залоги, сервитуты и другие правовые ограничения, которые влияют на право распоряжения имуществом.
Обратите внимание на дату и номер выписки. Они должны соответствовать последней версии документа и не иметь признаков исправлений или искажений.
Для дополнительной проверки следует сверить электронную подпись и QR-код, если выписка предоставлена в электронном виде. Эти данные подтверждают подлинность документа и его регистрацию в Росреестре.
Можно ли проверить подлинность бумажной выписки через интернет

Подлинность бумажной выписки из ЕГРН напрямую через интернет проверить нельзя, так как бумажный документ не содержит встроенных цифровых средств подтверждения подлинности, таких как электронная подпись или QR-код. Однако существуют способы косвенной проверки данных из бумажной выписки онлайн.
Для проверки бумажной выписки используйте следующий алгоритм:
- Найдите в выписке уникальный номер документа (указан в верхней части или в разделе с реквизитами).
- Перейдите на официальный сайт Росреестра или на портал Госуслуг.
- Используйте сервисы запроса сведений из ЕГРН по номеру документа или по кадастровому номеру объекта недвижимости.
- Сравните основные данные (кадастровый номер, адрес, сведения о собственнике, права и ограничения) из электронного запроса с информацией в бумажной выписке.
Если данные совпадают, это служит косвенным подтверждением подлинности бумажного документа. Несовпадение указывает на возможное несоответствие или подделку.
Обратите внимание, что электронные выписки имеют встроенные средства проверки подлинности – QR-код и электронную подпись, которые отсутствуют на бумажных экземплярах. Поэтому наиболее надежным способом является получение и проверка электронной выписки.
Для дополнительной проверки бумажной выписки можно обратиться в многофункциональный центр (МФЦ) или Росреестр с оригиналом документа, где специалисты сверят данные и подтвердят его подлинность.
Вопрос-ответ:
Как проверить подлинность электронной выписки из ЕГРН через официальный сайт?
Для проверки подлинности электронной выписки из ЕГРН нужно перейти на официальный сайт Росреестра. Там есть специальный сервис, где можно загрузить файл выписки или ввести уникальный номер документа (например, номер запроса или QR-код). После этого система выдаст информацию о подлинности, подтвердит, что документ зарегистрирован и не был изменён. Важно использовать только официальный ресурс, чтобы избежать мошенничества.
Какие признаки указывают на подделку бумажной выписки из ЕГРН?
Поддельная бумажная выписка обычно содержит неточности в оформлении: отсутствуют водяные знаки, нет голограммы, плохое качество печати, ошибки в шрифтах или неправильное расположение элементов. В документе может отсутствовать QR-код или штрих-код, которые используются для проверки подлинности. Также часто встречаются ошибки в данных — например, неверные адреса или даты. Если есть сомнения, лучше проверить выписку через официальный сервис.
Можно ли проверить подлинность выписки из ЕГРН, если у меня только бумажная версия без QR-кода?
Да, проверить подлинность возможно, но потребуется дополнительная информация из документа, например, номер выписки и дата её выдачи. Эти данные можно ввести на сайте Росреестра в разделе проверки выписки. Иногда нужно обратиться в МФЦ или к регистратору с запросом для подтверждения информации. Отсутствие QR-кода усложняет автоматическую проверку, но не исключает возможность проверить данные вручную.
Что делать, если электронная выписка из ЕГРН не открывается или файл повреждён?
Если файл выписки не открывается, сначала нужно проверить, что используемое программное обеспечение поддерживает формат документа (обычно PDF). Если проблема сохраняется, стоит запросить выписку повторно через официальный сайт или портал госуслуг. В случае подозрения на повреждение файла, лучше отказаться от использования этого документа, так как при проверке подлинности система не сможет его распознать и подтвердить.
Насколько надежна проверка подлинности выписки из ЕГРН через QR-код?
Проверка по QR-коду — один из самых быстрых и точных способов подтвердить подлинность выписки. При сканировании кода пользователь автоматически получает доступ к официальной информации о документе на сайте Росреестра. Это исключает возможность подделки, так как код генерируется системой и связан с конкретной выпиской. Однако для полной уверенности рекомендуется дополнительно сверять данные с теми, что указаны в самом документе.
Как проверить подлинность выписки из ЕГРН через официальный сайт и какие данные для этого нужны?
Для проверки подлинности выписки из ЕГРН онлайн необходимо зайти на официальный портал Росреестра или на специализированные сайты, которые предоставляют такую услугу. Важно иметь под рукой номер выписки или уникальный код документа, который указан в самой выписке. После ввода этих данных система проверит, действительно ли такой документ зарегистрирован в базе. Кроме того, можно сверить дату выдачи, сведения о объекте недвижимости и электронную подпись, если она присутствует в документе. Проверка позволяет убедиться, что выписка не была подделана и соответствует официальной информации в государственном реестре.
