
Под перепланировкой в жилом помещении понимается изменение конфигурации, отражённое в техническом паспорте квартиры. К таким работам относятся демонтаж или перенос перегородок, устройство новых проёмов, объединение или разделение помещений, а также изменение назначения отдельных комнат, если это требует корректировки по техническому плану.
Установка или демонтаж стен – одна из наиболее распространённых форм перепланировки. Даже если речь идёт о лёгкой гипсокартонной конструкции, её возведение или удаление должно быть зафиксировано и согласовано с жилищной инспекцией, поскольку такие действия влияют на конфигурацию жилого пространства.
Изменение расположения дверных проёмов, особенно в несущих стенах, также относится к перепланировке. Работы, затрагивающие несущие конструкции, требуют не только согласования, но и технического заключения от проектной организации о допустимости таких изменений.
Перенос сантехнического оборудования – например, перемещение ванной, унитаза или кухни – входит в перечень перепланировок, если он требует изменения схем водоснабжения и канализации. Особенно это актуально, если кухня переносится в жилую комнату или наоборот – при объединении санузлов.
Застекление лоджий, демонтаж подоконного блока между комнатой и балконом, устройство тёплого пола, подключённого к центральному отоплению – все эти действия относятся к перепланировке и требуют официального согласования. В противном случае собственнику может грозить штраф и обязанность вернуть квартиру к исходному состоянию.
Любые работы, изменяющие план квартиры, должны быть согласованы до их начала. Нарушение порядка оформления может повлечь отказ в регистрации прав собственности, сложности при продаже недвижимости и юридические риски. Поэтому перед началом любых изменений важно получить профессиональную консультацию и провести техническое обследование объекта.
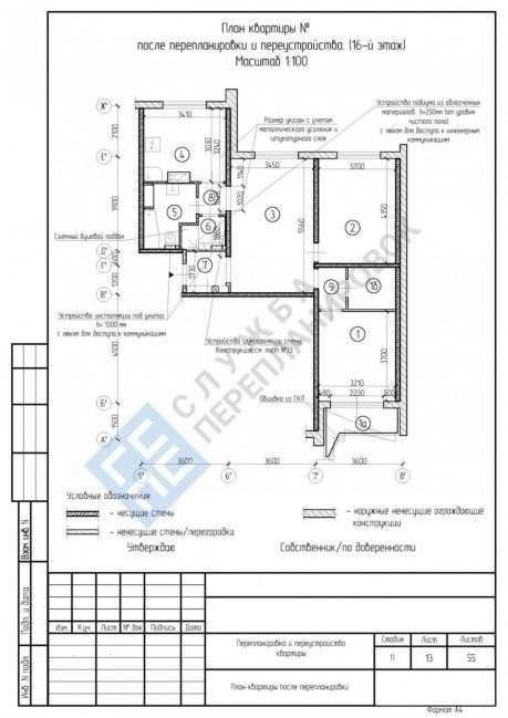
Перенос или демонтаж внутренних стен и перегородок

Любые изменения, связанные с переносом или сносом внутренних стен и перегородок, официально считаются перепланировкой и требуют согласования с жилищной инспекцией. Это относится как к капитальным стенам, так и к лёгким конструкциям из гипсокартона или пеноблоков, если они указаны в техническом паспорте квартиры.
Перенос перегородок с целью увеличения или уменьшения площади отдельных помещений влияет на функциональное зонирование и может затрагивать нормы инсоляции, вентиляции и минимальные размеры жилых комнат. Например, объединение кухни с жилой комнатой допустимо только при наличии электроплиты и хорошей вентиляции.
Демонтаж перегородок, даже не несущих, требует технического заключения о безопасности работ. В домах старой постройки с деревянными перекрытиями такие действия могут нарушить устойчивость конструкции. Без экспертизы и проектной документации работы могут привести к обрушению перекрытий или ухудшению шумоизоляции между квартирами.
Категорически запрещён снос несущих стен без специального проекта, согласованного с автором здания и контролирующими органами. Такие действия считаются грубым нарушением и влекут за собой штрафы, а также предписание вернуть конструктив в первоначальное состояние.
Рекомендуется заказывать проект перепланировки в лицензированной проектной организации, чтобы исключить риски отказа в согласовании. После проведения работ требуется внесение изменений в технический паспорт квартиры через БТИ.
Изменение конфигурации дверных и оконных проёмов

Перемещение или изменение размеров дверных и оконных проёмов относится к перепланировке, если затрагиваются несущие конструкции или меняется функциональное назначение помещений. Например, перенос входа из коридора в комнату с образованием нового проёма в несущей стене требует обязательного согласования с Мосжилинспекцией или другим уполномоченным органом.
Изменение формы проёма – замена прямоугольного проёма на арочный или расширение дверного проёма – также требует проектной документации. В случае вмешательства в несущие стены необходимо заключение от специализированной организации с допуском СРО.
Устройство новых оконных проёмов в фасадных стенах категорически запрещено без разрешения. Особенно это касается зданий, являющихся объектами культурного наследия или расположенных в исторических зонах. Такие действия могут повлечь штрафы и обязательство вернуть всё в первоначальное состояние.
Даже частичное заделывание существующих проёмов, например, ликвидация двери между комнатой и кухней, при условии изменения путей эвакуации или вентиляции, требует согласования. При этом любые работы должны проводиться с соблюдением СНиП и действующих строительных норм.
Если проёмы меняются в перегородках, не являющихся несущими, и не затрагиваются общедомовые инженерные системы, допускается уведомительный порядок согласования. Однако и в этом случае необходима поэтажная схема БТИ и техническое заключение о безопасности планируемых изменений.
Объединение кухни с жилой комнатой или лоджией

При объединении кухни с жилой комнатой или лоджией изменяется функциональное зонирование помещения, что относится к перепланировке и требует обязательного согласования. Такие изменения затрагивают санитарные, противопожарные и строительные нормы, особенно если в квартире установлена газовая плита.
Запрещено демонтировать перегородку между кухней с газовым оборудованием и жилой комнатой. Допускается установка раздвижных или складных перегородок, обеспечивающих возможность изоляции кухни. В квартирах с электрическими плитами объединение помещений возможно, но требует технического заключения о допустимости работ.
При объединении с лоджией необходимо учитывать, что снос наружной стены и монтаж теплого пола на лоджии запрещены без специального проекта. Остекление и утепление лоджии не делает её полноценным жилым помещением. Допускается только частичное открытие проема и установка раздвижных конструкций.
Для согласования перепланировки потребуется техническое заключение от проектной организации, проект перепланировки и уведомление жилищной инспекции. Самовольное объединение без этих документов чревато штрафами, отказом в регистрации сделок и необходимостью восстановления исходной планировки.
Устройство или перенос сантехнического оборудования

Монтаж или перемещение сантехнического оборудования – ванн, унитазов, раковин, душевых кабин – считается перепланировкой, если затрагиваются стояки, инженерные коммуникации или изменяется функциональное назначение помещения. Например, перенос кухни в жилую комнату или устройство санузла в кладовой требует согласования, поскольку это нарушает санитарные и строительные нормы.
Основное ограничение касается размещения «мокрых зон» над жилыми комнатами соседей снизу. В многоквартирных домах устройство санузла допускается исключительно над аналогичными техническими помещениями. Исключения возможны только при наличии технического заключения и соблюдении дополнительных условий по гидроизоляции.
Перенос унитаза связан с изменением положения канализационного выпуска, что требует соблюдения уклонов и ограничений по длине горизонтального участка. Нарушение этих параметров приводит к засорам и может стать причиной отказа в согласовании.
При перемещении мойки или ванны необходимо учитывать не только подвод холодной и горячей воды, но и отвод сточных вод. Размещение нового сантехнического оборудования вдали от стояков требует установки насосных станций, что не всегда допустимо по техническим условиям дома.
Все работы, связанные с сантехникой, должны быть отражены в проекте перепланировки и согласованы с жилищной инспекцией или иным уполномоченным органом.
Особое внимание уделяется замене ванны на душевую кабину: при уменьшении площади «мокрой зоны» необходимо сохранить уровень гидроизоляции и исключить риск протечек. Также запрещено устраивать санузел в помещениях без естественной вентиляции, если отсутствует техническая возможность подключения к общей вытяжке.
Переустройство систем вентиляции и отопления

Переустройство вентиляции в квартире включает изменение конструкции, направления и объёма воздухообмена. К перепланировке относится монтаж новых вентиляционных каналов, замена вентиляционных решёток, а также устройство вытяжек в помещениях, где их ранее не было.
Особое внимание уделяется сохранению эффективности вентиляционной системы, чтобы не нарушить нормативы воздухообмена и предотвратить возникновение сырости и плесени. Все изменения требуют согласования с жилищными органами и проектной организацией.
Переустройство системы отопления охватывает демонтаж и установку радиаторов, перенос трубопроводов, замену стояков, монтаж новых теплоисточников (например, конвекторов). Перенос отопительных приборов в пределах квартиры без изменения общедомовой системы возможен только при соблюдении правил теплоизоляции и технических требований.
При замене или переносе отопительных элементов необходимо использовать материалы и оборудование, соответствующие нормативам по теплопотерям и пожарной безопасности. Любое вмешательство в общедомовые инженерные сети требует согласия управляющей организации и оформления технической документации.
| Вид переустройства | Ключевые моменты | Требования для согласования |
|---|---|---|
| Монтаж/демонтаж вентиляционных каналов | Изменение направления воздушных потоков, установка новых решёток | Проект вентиляции, техническое заключение |
| Перенос радиаторов отопления | Соблюдение теплового баланса, установка согласованных приборов | Разрешение управляющей компании, технический проект |


